Дома под ключ в Элисте
Отзывы из Яндекс Карт
4.9
87 отзывов
Дополнительные услуги 88%
2 154 оценок
Комплектации 89%
1 535 оценок
Планировки 90%
2 484 оценок
Проекты 93%
2 231 оценок
С
Зарина Шестакова04.03.2026 г.
Два года мечтали о доме с панорамным остеклением и вторым светом, выбрали проект 9х11. БрусДома уговорили поставить энергосберегающие стеклопакеты — дорого, но окупилось. Зимой не дует, летом не жарит. С монтажом проблем не было.
С
Искра Миронова07.04.2025 г.
Я в полном восторге от скорости строительства! Каркасный дом для моих родителей был возведён буквально за два месяца под ключ! Родители теперь живут в тепле и уюте, а я спокойна за них! Спасибо за ваш профессионализм и оперативность! Отдельная благодарность прорабу Павлу за чуткость и внимательность к пожеланиям пожилых людей!
Отзывы из Google Карт
4.8
53 отзывов
Дополнительные услуги 88%
2 154 оценок
Комплектации 89%
1 535 оценок
Планировки 90%
2 484 оценок
Проекты 93%
2 231 оценок
С
Герасим Дементьев13.02.2026 г.
После новоселья друзья ахали, говорили, что такой дом должен был стоить дороже. Сам до сих пор не пойму, как они уложились в нашу смету без явного ущерба качеству.
С
Гайя Козырева11.01.2026 г.
Ездила к ним в офис смотреть образцы материалов для дома 6х6 с печкой и санузлом. Консультант показала и профилированный брус, и оцилиндрованное бревно, помогла рассчитать. Стройка началась ровно в оговоренный день, но из-за снегопада затянулась на 5 дней
С
Ирма Васильева04.03.2025 г.
Спасибо за оперативность — от момента подписания договора до сдачи объекта под ключ прошло всего несколько месяцев, что для индивидуального строительства просто невероятно.
Отзывы из 2гис
4.9
31 отзывов
Дополнительные услуги 88%
2 154 оценок
Комплектации 89%
1 535 оценок
Планировки 90%
2 484 оценок
Проекты 93%
2 231 оценок
С
Витя Колпаков07.04.2026 г.
Думал, что за городом лучше, но стройка вымотала. Заказал дом 12х12 с мансардой и балконом, строили полгода, из них два месяца ждали доставку бруса камерной сушки. Но когда привезли, собрали за три недели как кубики. Дом красивый, пахнет деревом, жена в восторге, а я рад что всё кончилось.
С
Лия Чеснокова27.07.2025 г.
Мы с мужем долго выбирали подрядчика и остановились на "Брус дома", и теперь я могу с уверенностью сказать, что это было одно из самых правильных наших решений в жизни.


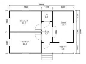
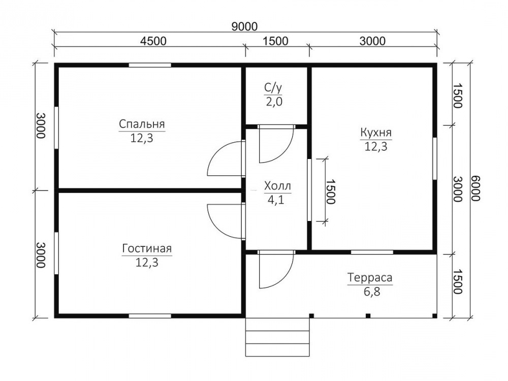
Проект №49 Дом 6х9

брус камерной сушки
Под ключ (с отделкой) 6х9 Профилированный 140х140 мм 1815700 Заказать
Под ключ (с отделкой) 6х9 Профилированный 190х140 мм 1985700 Заказать
Под усадку (без отделки) 6х9 Cруб дома 140х140 мм 1415700 Заказать
Под усадку (без отделки) 6х9 Cруб дома 190х140 мм 1585700 Заказать

Доставка включена в стоимость дома!



Комплектация

Площадь застройки: 49 м2
Длина: 6 м
Ширина: 9 м
Общая площадь: 49.8 м2
Под ключ (с отделкой) Под усадку (без отделки)
Фундамент Свайно-винтовой или ж/б сваи (рассчитываются отдельно).
Гидроизоляция фундамента Рубероид в два слоя.
Основание (обвязка) Из обрезного бруса (100х150 мм. 150х150 мм. 150х200 мм. согласно выбранному сечению бруса). Обработка антисептиком.
Количество рядов основания 2 2
Цокольное перекрытие Обрезной брус камерной сушки 100х150/50х200 мм. с шагом 600 мм. Обработка антисептиком. Обрезной брус естественной влажности 100х150/50х200 мм. с шагом 600 мм. Обработка антисептиком.
Пол черновой Обрезная доска камерной сушки 20х100 мм. Обрезная доска естественной влажности 20х100 мм.
Внешние стены Профилированный брус камерной сушки, сечением 90х140/140х140/190х140 мм. по выбранной комплектации. Два вида профиля: 
1. С двух сторон, прямой со снятой фаской. 2. Снаружи под «блок- хаус», внутри прямой.
Высота сруба: Сруб одноэтажный- 18 венцов
Сруб с мансардой- 18 венцов
Сруб в 1,5 этажа- 18 венцов, далее каркас с внешней отделкой имитацией бруса.
Сруб в 2 этажа- 37 венцов
Профилированный брус естественной влажности, сечением 90х140/140х140/190х140 мм. по выбранной комплектации. Два вида профиля: 
1. С двух сторон, прямой со снятой фаской. 2. Снаружи под «блок- хаус», внутри прямой.
Высота сруба: Сруб одноэтажный- 18 венцов
Сруб с мансардой- 18 венцов
Сруб в 1,5 этажа- 18 венцов, далее каркас с внешней отделкой имитацией бруса.
Сруб в 2 этажа- 37 венцов
Межвенцовый утеплитель Джут (льноджутовое полотно). Джут (льноджутовое полотно).
Перегородки 1-го этажа Профилированный брус камерной сушки, сечением 90х140 мм. Профилированный брус естественной влажности, сечением 90х140 мм.
Перегородки 2-го этажа Каркасные: доска камерной сушки 40х100 мм, обшитые евровагонкой хвойных пород, камерной сушки, толщиной 12,5 мм. сорт «АВ» (дома с мансардой и в 1,5 этажа). Брусовые: профилированный брус камерной сушки, сечением 90х140 мм. (дома двухэтажные). Каркасные: доска естественной влажности 40х100 мм. (дома с мансардой и в 1,5 этажа). Брусовые: профилированный брус естественной влажности, сечением 90х140 мм. (дома двухэтажные).
Сборка сруба Берёзовый нагель. Берёзовый нагель.
Соединение углов сруба «Тёплый угол» (коренной шип). «Тёплый угол» (коренной шип).
Высота от пола до потолка Сруб одноэтажный: 2,4 м. (18 венцов) Сруб с мансардой: 1-ый этаж- 2,4 м. (18 венцов)
2-ой этаж (мансарда)- 2,3 м.
Сруб в полтора и два этажа:
1-ый этаж 2,4 м ±4 см. (18 венцов)
2-ой этаж 2,4 м ±4 см. каркасные аттиковые стены (боковые) высотой 1,5 м. в полутораэтажном доме
2,4 м ±4 см (поднят брусом на 18 венцов) в двухэтажном доме.
Сруб одноэтажный: 2,5 м. (18 венцов) Сруб с мансардой: 1-ый этаж- 2,5 м. (18 венцов)
2-ой этаж (мансарда)- 2,4 м.
Сруб в полтора и два этажа:
1-ый этаж 2,5 м ±4 см. (18 венцов)
2-ой этаж 2,5 м ±4 см. каркасные аттиковые стены (боковые) высотой 1,5 м. в полутораэтажном доме
2,5 м ±4 см (поднят брусом на 18 венцов) в двухэтажном доме.
Утепление (пол, потолок, мансарда) Минеральная вата Knauf 150 мм. Отсутствует.
Пароизоляция (пол, потолок, мансарда) Ондутис R70. Отсутствует.
Пол чистовой Шпунтованная доска камерной сушки толщиной 36 мм. сорт АВ. по рейке 20х40 мм. либо шпунтованная ДСП 16 мм. по разряженной обрешётке из обрезной доски камерной сушки 20х100 мм. Отсутствует.
Потолки Евровагонка камерной сушки толщиной 12,5 мм. сорт АВ. Отсутствует.
Окна Деревянные, двойного остекления. Отсутствуют.
Двери Входная- металлическая, утеплённая (Россия). Межкомнатные- филёнчатые. Отсутствуют.
Наличники на окна и двери Наличник деревянный, строганый, камерной сушки 70-90 мм. Отсутствует.
Шиповка оконных и дверных проёмов (ройки) Да. Отсутствует.
Лестница (при наличии второго этажа) Деревянная, одно или двухмаршевая. Перила- заводские резные, балясины- заводские точеные, устанавливаются стартовые точёные столбы. Ступени 40х200 мм. Тетива лестницы- 90х140 мм. Отсутствует.
Крыша Двускатная, ломаная или вальмовая в соответствии с проектом. Двускатная, ломаная или вальмовая в соответствии с проектом.
Стропильная система Выполнена из обрезной доски камерной сушки 40х150 мм. Шаг установки стропильных ног 600 мм. Выполнена из обрезной доски естественной влажности 40х150 мм. Шаг установки стропильных ног 600 мм.
Обрешётка Выполняется из обрезной доски камерной сушки толщиной 20-22 мм. Шаг крепления обрешетки 300 мм. Контробрешётка выполняется из бруска камерной сушки 40х50 мм. Крепится по стропильным ногам (вентиляционный зазор). Выполняется из обрезной доски естественной влажности толщиной 20-22 мм. Шаг крепления обрешетки 300 мм. Контробрешётка выполняется из бруска естественной влажности 40х50 мм. Крепится по стропильным ногам (вентиляционный зазор).
Подкровельная мембрана Ондутис А100 Ондутис А100
Кровельное покрытие (на выбор) Ондулин, Черепица Ондулин. Ондулин, Черепица Ондулин.
Фронтоны (при наличии) Каркас из обрезной доски камерной сушки 40х150 мм. Обшиваются вагонкой камерной сушки толщиной 16 мм. сорт АВ по контррейке 20х40 мм. (вентиляционный зазор). Влаго-ветрозащита Ондутис А100. Монтаж вентиляционных решёток. Каркас из обрезной доски естественной влажности 40х150 мм. Обшиваются вагонкой камерной сушки толщиной 16 мм. сорт АВ по контррейке 20х40 мм. (вентиляционный зазор). Влаго-ветрозащита Ондутис А100. Монтаж вентиляционных решёток.
Свесы крыши Ширина 400 мм. Подшиваются вагонкой камерной сушки, сорт АВ. Ширина 400 мм. Подшиваются вагонкой камерной сушки, сорт АВ.
Терраса/балкон (при наличии) Устанавливаются опорные столбы из строганного бруса камерной сушки 140х140 мм. с компенсационными болтами под усадку. Устанавливаются опорные столбы из строганного бруса естественной влажности 140х140 мм. с компенсационными болтами под усадку.
Отделка потолка террасы/балкона Евровагонка камерной сушки толщиной 12,5 мм. сорт АВ. Отсутствует.
Пол террасы/балкона Шпунтованная доска камерной сушки толщиной 36 мм. сорт АВ. Отсутствует.
Ограждение террасы/балкона Перила- строганая доска. Балясины- точеные, фигурные. Либо ограждение в скандинавском стиле. Устанавливаются ступени у входа. Отсутствует.
Допуск на геометрические параметры сруба Составляет +/- 50 мм по длине с каждой стороны. Составляет +/- 50 мм по длине с каждой стороны.
Допускается стыковка бруса, вагонки и половой доски По всему периметру стен дома (если ширина и длина дома более 6,0 метров). Вагонки и доски пола в каждой отдельной комнате. По всему периметру стен дома (если ширина и длина дома более 6,0 метров).
Допуски по брусу, доске +/- 5 мм. +/- 5 мм.
В стоимость включена Доставка комплекта материала в радиусе 500 км. от г. Пестова Новгородской области и сборка дома на вашем участке. Доставка комплекта материала в радиусе 500 км. от г. Пестова Новгородской области и сборка дома на вашем участке.
Гарантия 5 лет. 2 года.
Бытовка строительная 2,0х3,0 м. каркасно-щитовая. Стоимость 23000 руб. Остаётся на участке Заказчика. Стоимость 23000 руб. Остаётся на участке Заказчика.
Туалет 1,0х1,0 м. каркасно-щитовой. Стоимость 12000 руб. Остаётся на участке Заказчика. Стоимость 12000 руб. Остаётся на участке Заказчика.
Генератор Стоимость аренды на весь срок строительства 10000 руб. ГСМ за счёт Заказчика. Стоимость аренды на весь срок строительства 10000 руб. ГСМ за счёт Заказчика.

Сооружение деревянного дома выполняется в нескольких видах: под усадку, когда сруб будет отстаиваться на протяжении определенного времени и полностью под ключ.

В зимний период надежнее строить из зимнего леса, летом - из сухого бруса.

Максимально подходящими для дачи или сада стали домики на винтовых сваях, на нашем сайте вы увидите одноэтажные и полуторатажные типы домов.

Когда дом будет строиться для проживания на протяжении всего года, советуем теплые дома на ленточных и плитных фундаментах.

Существует 2 размера профбруса: 190х140 мм и 140х140 мм. Постройки из вертикального бруса возводятся с применением бруса 140х190 мм.

Дополнительные услуги


Брусовой дом размером 6х9 м. , постоенный по проекту 49, одноэтажный, выделяется долговечностью, прочностью пожарной и экологической защитой, улучшенными теплоизоляционными свойствами.
Площадь дома 49.8 кв.м..
Монтаж проводится на фундамент на винтовых сваях, при возведении используются новейшие надежные материалы.
Утеплитель минеральная вата от 100 мм, крыша типа двускатная, все комплектации обеспечены гидро- пароизоляцией междуэтажных перекрытий и пола.
Готовый дом по типовому или индивидуальному проекту — качественно и быстро.

Популярные проекты

хит продаж брус камерной сушки
Тип: с маленькой террасой
Общая площадь: 109.72
2069420
от 1970900
хит продаж брус камерной сушки
Тип:
Общая площадь: 782
2187440
от 2083300
хит продаж брус камерной сушки
Тип: с балконом, с маленькой террасой
Общая площадь: 772
1641440
от 1563300

Заказать или задать вопрос



Заказать или задать вопрос

Заказать звонок